![]() |
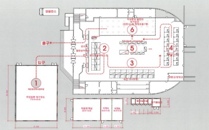
| ▲접종센터 동선.(의성군 제공) |
[로컬세계 박상진 기자]경북 의성군은 전 군민(70%) 코로나19 백신 접종으로 집단면역을 확보해 지역사회 전파를 차단하고자 의성 실내체육관을 예방접종센터로 지정했다고 5일 밝혔다.
앞서 군은 접종센터 구축을 위해 시행추진단과 지역협의체를 구성하고, 접종 준비상황 점검을 위해 3차례 확대간부회의와 지역협의체 간담회를 개최했다.
군은 백신접종을 위해 센터 내부에 미끄럼 방지 바닥 덮개와 공조기 및 냉·온풍기, UPS(자가전기발전기)를 설치했다. 또 백신보관용 초저온 냉동고·냉장고 등을 설치하고 센터 외부에는 접종대상자 대기장소, 직원휴게실 및 식당, 탈의실, 폐기물 보관장소를 설치해 오는 15일까지 시설을 완비할 예정이다.
김주수 의성군수는 “예방접종센터의 선제적·안정적 운영을 통해 군민들이 불편함 없이 코로나19 예방접종을 할 수 있도록 준비에 만전을 기하겠다”고 말했다.
한편 군은 대기-접종-관찰의 신속하고 원활한 흐름을 위해 시나리오를 구축하고 있으며, 구체적인 운영계획은 접종센터 시행추진단의 시나리오 시뮬레이션 후 확정될 예정이다. 백신수급상황에 따라 변수가 있을 수 있지만, 군민들을 대상으로 올해 3분기까지 1차 접종을 완료해 11월까지 집단면역을 형성한다는 계획이다.
[저작권자ⓒ 로컬(LOCAL)세계. 무단전재-재배포 금지]





























